...
×

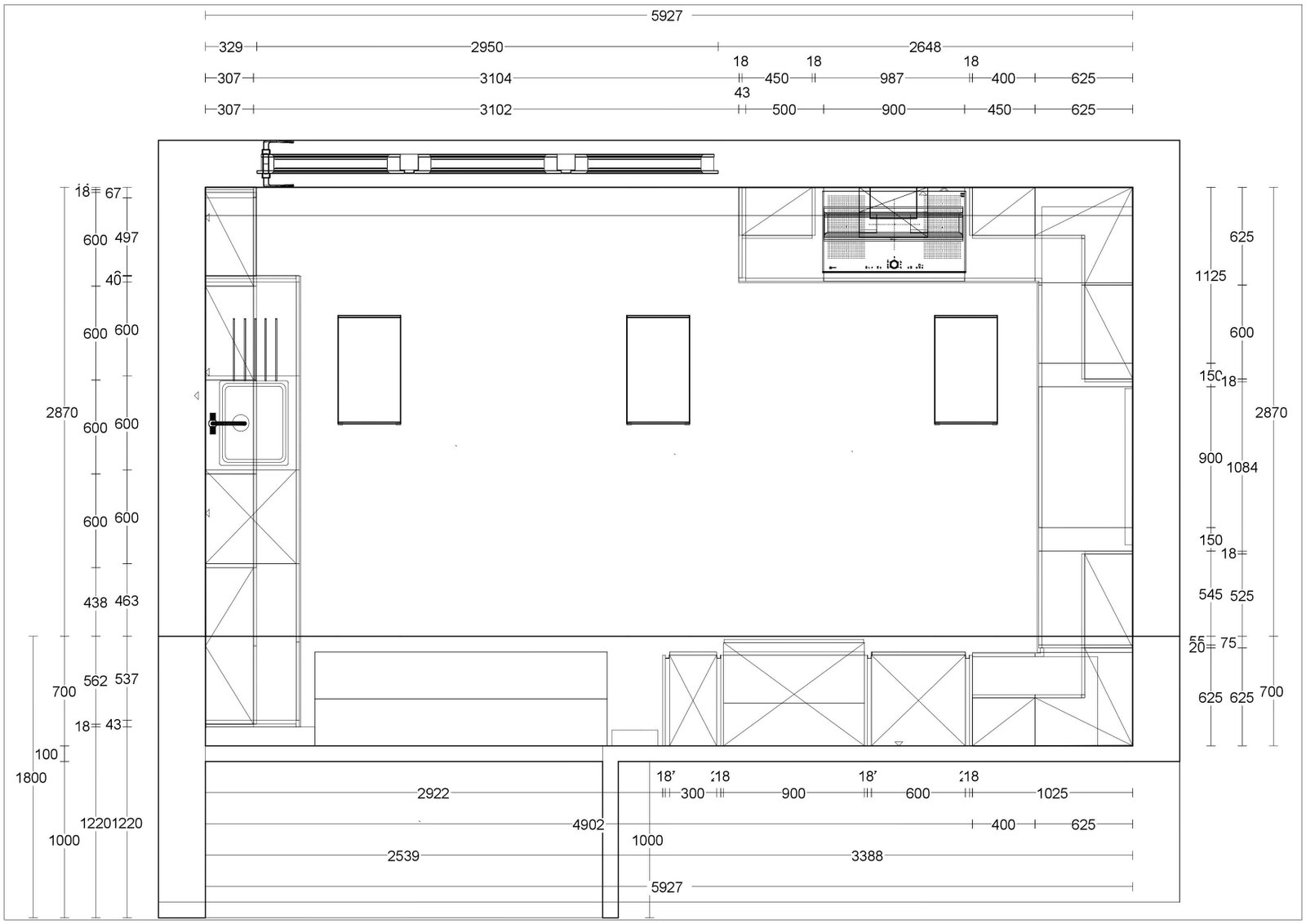
This beautiful Wickes Intelliga ice white cad design is now installed at Chiltern Avenue, Watford. Please scroll through my completed designs portfolios to see how gorgeous the real kitchen looks like.

Seraphinite AcceleratorOptimized by Seraphinite Accelerator
Turns on site high speed to be attractive for people and search engines.