...
×

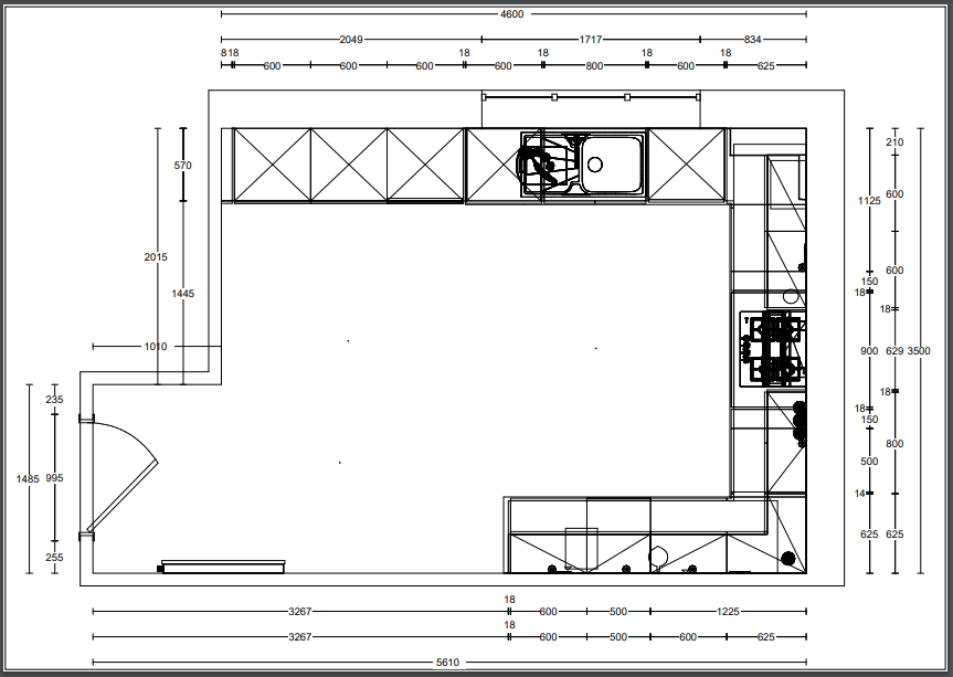
This Sofia pewter cad design is now installed and completed at Highfields, Bushey. Please brows the completed design page to see how gorgeous it has turned out.

Seraphinite AcceleratorOptimized by Seraphinite Accelerator
Turns on site high speed to be attractive for people and search engines.